Sorry, some online campsite bookings are experiencing problems at the payment stage. If you have trouble completing your campsite booking, please call us on 0345 266 0795 so we can help and confirm your stay. Many thanks.



| M | T | W | T | F | S | S |
|---|---|---|---|---|---|---|
Immerse yourself in rolling farmland and peaceful countryside. This cosy cottage is the perfect getaway for friends and family.
Nestled within the tranquil beauty of Kent, this cottage is the place to stay for those wishing to explore the surrounding countryside and visit the historic Sissinghurst Castle and Gardens.
This beautiful cottage once formed part of an original stable block for Bettenham Manor and was converted into farm cottages in the late 1700’s. Facing a quiet country lane, with original beams and a sloping landing ceiling guests are still able to experience a bit of the past. The log-burner and four-seater corner sofa, in the lounge, creates a distinctly cosy atmosphere to add to this experience. There’s also a newly-fitted kitchen and dining area, as well as a downstairs toilet, a walk-in shower and full size bath upstairs. With an enclosed garden, small patioed area and parking for one car at the rear, this cottage has everything you need for a relaxing break.
Sissinghurst Castle Gardens is a 20-minute stroll through the estate and the cottage is in open countryside with plenty of walks in the vicinity. The Three Chimney pub is a 15-minute walk up the road and serves food and is dog-friendly. The cottage is also within an easy drive of the market towns of Tenterden and Cranbrook with a host of charming villages to explore in the area.
The cottage’s location enables guests to visit and enjoy these colourful gardens, which reflect the romance and intimacy of the writings of Vita Sackville-West. Learn how the writer and her husband Harold Nicolson transformed Sissinghurst Castle during the 1930s, discover the arresting architecture of the garden rooms, enjoy panoramic views from the top of the Tower and take a walk around the 450-acre estate.
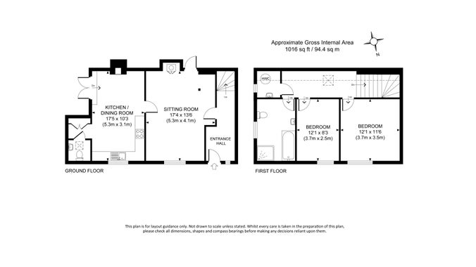
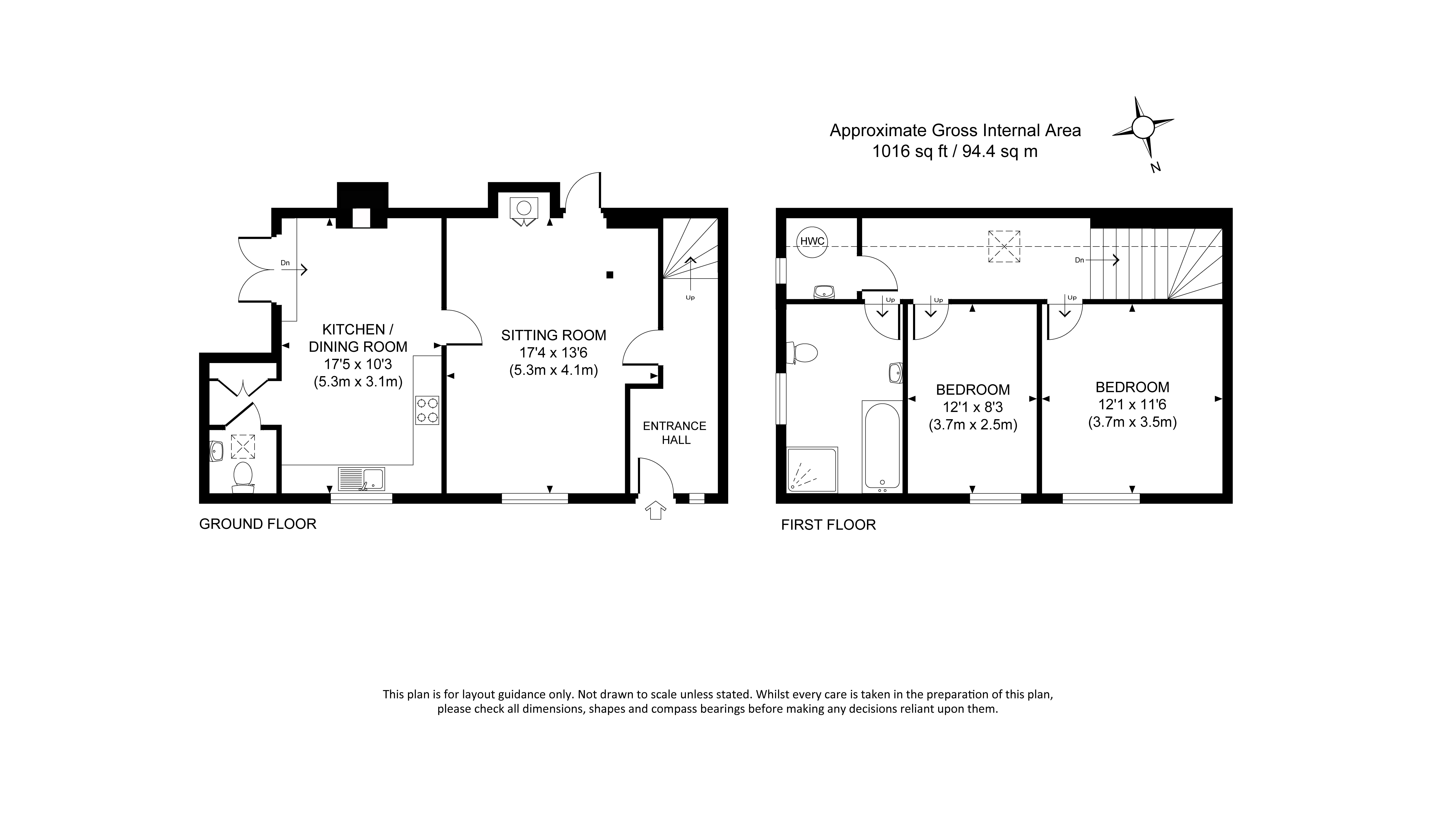
Small entrance lobby, sitting room with log burner, kitchen diner, toilet.
Landing with sloped ceiling. Two bedrooms: one king size double and one twin which can be made up as a king size double on request. Bathroom with bath and separate shower cubicle.
The back garden is accessed from the parking area or via the lounge and is fenced. A small patioed seating area looks down the garden to an established apple tree and backing onto fields.

Not accessible. Induction hob. Find more information in the Accessibility Guide. Accessibility questions? Email holiday.enquiries@nationaltrust.org.uk or call us on 0344 800 2070.
Induction hob: Please note there is an induction hob at this cottage. Guests with pacemakers are advised to check with their doctor to ensure there will be no interference with their pacemaker. Guests with pacemakers are also advised to keep a distance of at least 60cm (2ft) from the hob when cooking.
Heating: The cottage is heated by electric storage heaters and a wood-burning stove in the sitting room.
Landing Ceiling: Due to the historic nature of this building, the landing ceiling is sloped with a maximum headroom of 1830mm and width of 1100mm. There is a protruding skylight handle, 1200mm high, to the top right of the stairs.
Parking: Parking is available for one car only as further cars will obstruct access for the neighbours.
Please note: There is no phoneline or WiFi available with a weak mobile signal in the area.
As a charity, we are governed by regulations which mean that we are unable to offer financial or monetary rewards to our members. Read the full FAQs to find out more.
Check-in is at 4pm, unless otherwise stated in your booking confirmation. Sorry, but we won't be ready for you to arrive or drop off your things any earlier. Check-out is at 10am. Enjoy a late check-out of 4pm on Sundays. Read the full FAQs to find out more.
The standard inventory includes most things you'd need to cook or bake, some cleaning supplies to get you started and bed linen and towels, unless otherwise stated on the webpage or your booking confirmation email. Read the full inventory to find out more.
By sharing your email address you’re agreeing to receive marketing emails from the National Trust and confirm you’re 18 years old or over. Please see our for more information on how we look after your personal data.