
Find more cottages
Explore the full range of National Trust holiday cottages, from lighthouses and farmhouses to thatched cottages and cabins.



| M | T | W | T | F | S | S |
|---|---|---|---|---|---|---|
Get a spectacular taste of 1930s glamour in this stunning Art Deco villa on the Dorset coast.
Lounging elegantly at the top of a slope overlooking the harbour at Portland, this extraordinary house, surrounded by a huge garden and terraces invokes the sophistication and luxury of old-school Hollywood, with its palm-fringed drive, pacific-blue Crittal windows and the house itself dazzlingly white against the blue of the sea beyond.
Looking like an Agatha Christie film set, the luxurious interiors of Portland House have been lovingly put together, retaining many of the original 1930’s features such as the kitchen, bathrooms and light fittings. Filled with period furniture, it’s easy to imagine that you’ve stepped back in time when you holiday here. Sleeping twelve, with seven spacious bedrooms, the seductive glamour of the house and its brilliant views make a truly unforgettable spot. Large French windows open out from most rooms onto two broad terraces outside (one above the other), and the house is designed to make the most of the south coast sun.
A hidden gem on the Dorset coastline, Portland House looks over the glittering water and basks in the tropical climate of the South Coast, which rivals the Mediterranean on a sunny day. Sitting just out of Weymouth itself, on a quiet residential road, you’ll find everything you need in terms of nearby shops and restaurants in the bustling centre of Weymouth a gentle stroll away. You can also explore the town’s sandy beaches and harbour with its stories of past sailing escapades.
If you ever tire of living the high life, then head further afield to explore the surrounding area, including the West Dorset Heritage coast on your doorstep. A short drive to the east will take you to the Jurassic Coast, a UNESCO World Heritage Site, where dinosaurs once roamed. Go fossil hunting along the beaches or take in the view of Lulworth Cove and Durdle Door from the headlands. When you stay with us, or visit National Trust places nearby like Hardy’s Cottage or Corfe Castle, you’re helping us to look after them for the future.
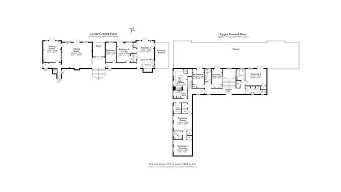
Large formal drawing room with ornamental fireplace of Portland Stone and French doors onto lower terrace. Dining room with French doors onto lower terrace. Bedroom 6: a double bedroom with 6’ bed, which can be a twin if requested, with French doors to terrace. Bedroom 1: a double bedroom with 5’ bed, with French doors to covered loggia. Bedroom 7: a single bedroom. Bathroom with shower over bath.
Bedroom 5: a double bedroom with 6' bed, which can be a twin if requested. Shower room. Breakfast room. Silver store. Pantry. Scullery. Kitchen with original feature cupboards and dumbwaiter to the lower floor. Bedroom 4: a twin bedroom with French doors onto terrace. Bathroom with shower over original bath. Bedroom 3: a single bedroom with wash hand basin and French doors to terrace. Bathroom with shower over original bath (bath not in use). Bedroom 2: a double bedroom with 5' bed, with French doors to terrace. Stairs down to dining room.
Large terraces with outdoor furniture on both levels. A smaller, covered terrace on the lower level, at the side of the house. Terraced gardens linked with pathways and steps. The entrance level garden has lawns and a colonnade of palm trees.

Parking on gravel. Some zip-and-link beds. Some terraced gardens with steps. Unfenced pond. Uneven steps in rockery. Find more information in the Accessibility Guide. Accessibility questions? Email holiday.enquiries@nationaltrust.org.uk or call us on 0344 800 2070.
WiFi: We’re pleased to provide free WiFi access at this accommodation, which is supported by BT. Please note intermittent connection problems can sometimes occur and therefore should not be relied upon.
Heating: The house is heated by a ground source heat pump combined with a gas boiler.
Logs: This cottage has an open fire. We’ll lay the first fire for you and supply a few extra logs. More logs are available to purchase when making a booking. The current price will be shown on the payment page.
Parking: Parking for up to six cars in a gravelled area.
Please note: There is a small unfenced pond in the garden. Extra care should be taken in the rockery area where steps are uneven.
There is no stairgate at this property.
No additional day guests are permitted at this cottage.
Having a celebration? Due to its age and heritage status, this cottage is suitable for no more than 12 overnight and two additional day guests.

A recently refurbished former farmhouse, set within the grounds of Coleton Fishacre.

A traditional farmhouse with wooden floors, and a log burner on the beautiful Dinefwr Park.

A luxury lakefront cottage that’s steeped in history and surrounded by stunning views.
As a charity, we are governed by regulations which mean that we are unable to offer financial or monetary rewards to our members. Read the full FAQs to find out more.
Check-in is at 4pm, unless otherwise stated in your booking confirmation. Sorry, but we won't be ready for you to arrive or drop off your things any earlier. Check-out is at 10am. Enjoy a late check-out of 4pm on Sundays. Read the full FAQs to find out more.
The standard inventory includes most things you'd need to cook or bake, some cleaning supplies to get you started and bed linen and towels, unless otherwise stated on the webpage or your booking confirmation email. Read the full inventory to find out more.

Explore the full range of National Trust holiday cottages, from lighthouses and farmhouses to thatched cottages and cabins.
By sharing your email address you’re agreeing to receive marketing emails from the National Trust and confirm you’re 18 years old or over. Please see our for more information on how we look after your personal data.